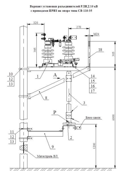
РАЗЪЕДИНИТЕЛЬ СЕРИИ РЛНД - (1;2) - 10 II (IV) / 200(400,630) УХЛ 1
Расшифровка РЛНД
РЛНД-Х1-Х2-10_X3/Х4-У1:
Р - разъединитель;
Л - линейный;
Н - наружной установки;
Д - два опорных изолятора на полюс;
Х1 - количество заземлителей на полюс (1 или 2 при их наличии);
Х2 - количество полюсов (только для двухполюсного разъединителя, для трехполюсного – обозначение отсутствует);
10 - номинальное напряжение, кВ;
Х3 - II (IV) класс изоляции по степени загрязнения по ГОСТ 9920-75;
Х4 - номинальный ток, А (200; 400; 630);
У1 - климатическое исполнение (УХЛ, Т) и категория размещения по ГОСТ 15150-69 и ГОСТ 15543.1-89.
Л - линейный;
Н - наружной установки;
Д - два опорных изолятора на полюс;
Х1 - количество заземлителей на полюс (1 или 2 при их наличии);
Х2 - количество полюсов (только для двухполюсного разъединителя, для трехполюсного – обозначение отсутствует);
10 - номинальное напряжение, кВ;
Х3 - II (IV) класс изоляции по степени загрязнения по ГОСТ 9920-75;
Х4 - номинальный ток, А (200; 400; 630);
У1 - климатическое исполнение (УХЛ, Т) и категория размещения по ГОСТ 15150-69 и ГОСТ 15543.1-89.
Технические параметры:
| Наименование параметров | Значение параметров при номинальном токе In | ||
|---|---|---|---|
| Наибольшее рабочее напряжение, кВ | 12 | 12 | 12 |
|
Номинальное напряжение, кВ |
10 | 10 | 10 |
|
Номинальный ток, А |
200 | 400 | 630 |
|
Ток термической стойкости, кА |
6,3 | 10 | 12,5 |
|
Ток электродинамической стойкости, кА |
15,75 | 25 | 31,5 |
|
Время протекания сквозного тока, С Для главных ножей Для заземлителей |
3 1 | 3 1 | 3 1 |
|
Длина пути утечки внешней изоляции, см |
30 (42) | 30 (42) | 30 (42) |
|
Наработка на отказ, циклов В-0 |
1000 | 1000 | 1000 |
